Дома под ключ в Севастополе
Отзывы из Яндекс Карт
4.9
124 отзывов
Дополнительные услуги 88%
2 154 оценок
Комплектации 89%
1 535 оценок
Планировки 90%
2 484 оценок
Проекты 93%
2 231 оценок
С
Венедикт Ильин04.04.2026 г.
Обратился в «БрусДома» за домом 10х12 с гаражом. Сначала сомневался из-за отзывов в интернете, но приехал на объект к соседу — посмотрел. Строили с октября по декабрь, даже снег не помешал, хотя крышу накрыли только к новому году.
С
Лев Карасёв01.04.2025 г.
Инженеры предложили грамотное планировочное решение, которое позволило максимально эффективно использовать каждый квадратный метр площади.
Отзывы из Google Карт
4.8
75 отзывов
Дополнительные услуги 88%
2 154 оценок
Комплектации 89%
1 535 оценок
Планировки 90%
2 484 оценок
Проекты 93%
2 231 оценок
С
Жасмин Новикова21.02.2026 г.
Заказывала летний домик 3х4 (свой размер, на сайте не было, но сделали индивидуально) с беседкой. Мальчики из бригады оказались очень весёлыми, но курить уходили прямо под будущее окно — потом неделю запах выветривала. Домик хороший, за свои деньги.
С
Герман Б.21.01.2026 г.
Наконец-то дошли руки написать отзыв. Заказывал баню 4х6 из бруса под ключ, добавил террасу и печку. Ребята из БрусДомов собрали быстро, за три недели управились, хотя я думал дольше будут мурыжить.
С
Александра Д.08.06.2025 г.
Спасибо за то, что помогли мне осуществить заветную мечту детства — иметь собственный деревянный дом с резными наличниками и большим крыльцом, как в деревне у бабушки.
Отзывы из 2гис
4.9
33 отзывов
Дополнительные услуги 88%
2 154 оценок
Комплектации 89%
1 535 оценок
Планировки 90%
2 484 оценок
Проекты 93%
2 231 оценок
С
Григорий Тихомиров19.03.2026 г.
Хотя намучился с документами на газ, компания помогала, но не быстро. Дом 10х10 с котельной и цоколем строили под ключ. Крышу переделали два раза из-за протечки, но в итоге починили.
С
Лев Рыбкин25.01.2025 г.
Выбирал подрядчика долго и тщательно, и мой выбор в пользу "Брус дома" оказался стопроцентно верным — дом возведен с невероятным вниманием к деталям, использованы качественные материалы, а сам процесс строительства был прозрачным и комфортным для меня.


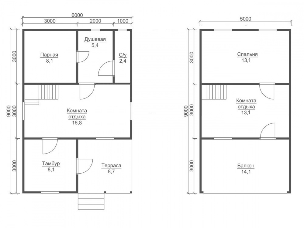
Проект №11 Баня 6х9

брус камерной сушки
Под ключ (с отделкой) 6х9 Профилированный 140х140 мм 2200900 Заказать
Под ключ (с отделкой) 6х9 Профилированный 190х140 мм 2410900 Заказать
Под усадку (без отделки) 6х9 Cруб дома 140х140 мм 1520900 Заказать
Под усадку (без отделки) 6х9 Cруб дома 190х140 мм 1680900 Заказать

Доставка включена в стоимость дома!



Комплектация

Площадь застройки: 54 м2
Длина: 6 м
Ширина: 9 м
Общая площадь: 91 м2
Под ключ (с отделкой) Под усадку (без отделки)
Фундамент Свайно-винтовой или ж/б сваи (рассчитываются отдельно).
Гидроизоляция фундамента Рубероид в два слоя.
Основание (обвязка) Из обрезного бруса (100х150 мм. 150х150 мм. 150х200 мм. согласно выбранному сечению бруса). Обработка антисептиком.
Количество рядов основания 2 2
Цокольное перекрытие Обрезной брус камерной сушки 100х150/50х200 мм. с шагом 600 мм. Обработка антисептиком. Обрезной брус естественной влажности 100х150/50х200 мм. с шагом 600 мм. Обработка антисептиком.
Пол черновой Обрезная доска камерной сушки 20х100 мм. Обрезная доска естественной влажности 20х100 мм.
Внешние стены Профилированный брус камерной сушки, сечением 90х140/140х140/190х140 мм. по выбранной комплектации. Два вида профиля: 
1. С двух сторон, прямой со снятой фаской. 2. Снаружи под «блок- хаус», внутри прямой.
Высота сруба: Сруб одноэтажный- 17 венцов
Сруб с мансардой- 17 венцов
Сруб в 1,5 этажа- 17 венцов, далее каркас с внешней отделкой имитацией бруса.
Сруб в 2 этажа- 35 венцов
Профилированный брус естественной влажности, сечением 90х140/140х140/190х140 мм. по выбранной комплектации. Два вида профиля: 
1. С двух сторон, прямой со снятой фаской. 2. Снаружи под «блок- хаус», внутри прямой.
Высота сруба: Сруб одноэтажный- 17 венцов
Сруб с мансардой- 17 венцов
Сруб в 1,5 этажа- 17 венцов, далее каркас с внешней отделкой имитацией бруса.
Сруб в 2 этажа- 35 венцов
Межвенцовый утеплитель Джут (льноджутовое полотно). Джут (льноджутовое полотно).
Перегородки 1-го этажа Профилированный брус камерной сушки, сечением 90х140 мм. Профилированный брус естественной влажности, сечением 90х140 мм.
Перегородки 2-го этажа Каркасные: доска камерной сушки 40х100 мм, обшитые евровагонкой хвойных пород, камерной сушки, толщиной 12,5 мм. сорт «АВ» (бани с мансардой и в 1,5 этажа). Брусовые: профилированный брус камерной сушки, сечением 90х140 мм. (бани двухэтажные). Каркасные: доска естественной влажности 40х100 мм. (бани с мансардой и в 1,5 этажа). Брусовые: профилированный брус естественной влажности, сечением 90х140 мм. (бани двухэтажные).
Сборка сруба Берёзовый нагель. Берёзовый нагель.
Соединение углов сруба «Тёплый угол» (коренной шип). «Тёплый угол» (коренной шип).
Высота от пола до потолка Сруб одноэтажный: 2,25 м. (17 венцов) Сруб с мансардой: 1-ый этаж- 2,25 м. (17 венцов)
2-ой этаж (мансарда)- 2,3 м.
Сруб в полтора и два этажа:
1-ый этаж 2,25 м. (17 венцов)
2-ой этаж 2,3 м. каркасные аттиковые стены (боковые) высотой 1,5 м. в полутораэтажной бане.
2,25 м. (поднят брусом на 17 венцов) в двухэтажной бане.
Сруб одноэтажный: 2,30 м. (17 венцов) Сруб с мансардой: 1-ый этаж- 2,3 м. (17 венцов)
2-ой этаж (мансарда)- 2,3 м.
Сруб в полтора и два этажа:
1-ый этаж 2,3 м. (17 венцов)
2-ой этаж 2,3 м. каркасные аттиковые стены (боковые) высотой 1,5 м. в полутораэтажной бане.
2,3 м. (поднят брусом на 17 венцов) в двухэтажной бане.
Утепление (пол, потолок, мансарда) Минеральная вата Knauf 150 мм. Отсутствует.
Пароизоляция (пол, потолок, мансарда) Ондутис R70. Отсутствует.
Пол чистовой Шпунтованная доска камерной сушки толщиной 36 мм. сорт АВ. по рейке 20х40 мм. либо шпунтованная ДСП 16 мм. по разряженной обрешётке из обрезной доски камерной сушки 20х100 мм. Отсутствует.
Потолки Евровагонка камерной сушки толщиной 12,5 мм. сорт АВ. Отсутствует.
Окна Деревянные, двойного остекления. Отсутствуют.
Двери Входная- металлическая, утеплённая (Россия). Межкомнатные- филёнчатые. В парную- клиновая (банная). Отсутствуют.
Наличники на окна и двери Наличник деревянный, строганый, камерной сушки 70-90 мм. Отсутствует.
Шиповка оконных и дверных проёмов (ройки) Да. Отсутствует.
Лестница (при наличии второго этажа) Деревянная, одно или двухмаршевая. Перила- заводские резные, балясины- заводские точеные, устанавливаются стартовые точёные столбы. Ступени 40х200 мм. Тетива лестницы- 90х140 мм. Отсутствует.
Крыша Двускатная, ломаная или вальмовая в соответствии с проектом. Двускатная, ломаная или вальмовая в соответствии с проектом.
Стропильная система Выполнена из обрезной доски камерной сушки 40х150 мм. Шаг установки стропильных ног 600 мм. Выполнена из обрезной доски естественной влажности 40х150 мм. Шаг установки стропильных ног 600 мм.
Обрешётка Выполняется из обрезной доски камерной сушки толщиной 20-22 мм. Шаг крепления обрешетки 300 мм. Контробрешётка выполняется из бруска камерной сушки 40х50 мм. Крепится по стропильным ногам (вентиляционный зазор). Выполняется из обрезной доски естественной влажности толщиной 20-22 мм. Шаг крепления обрешетки 300 мм. Контробрешётка выполняется из бруска естественной влажности 40х50 мм. Крепится по стропильным ногам (вентиляционный зазор).
Подкровельная мембрана Ондутис А100 Ондутис А100
Кровельное покрытие (на выбор) Ондулин, Черепица Ондулин. Ондулин, Черепица Ондулин.
Фронтоны (при наличии) Каркас из обрезной доски камерной сушки 40х150 мм. Обшиваются вагонкой камерной сушки толщиной 16 мм. сорт АВ по контррейке 20х40 мм. (вентиляционный зазор). Влаго-ветрозащита Ондутис А100. Монтаж вентиляционных решёток. Каркас из обрезной доски естественной влажности 40х150 мм. Обшиваются вагонкой камерной сушки толщиной 16 мм. сорт АВ по контррейке 20х40 мм. (вентиляционный зазор). Влаго-ветрозащита Ондутис А100. Монтаж вентиляционных решёток.
Свесы крыши Ширина 400 мм. Подшиваются вагонкой камерной сушки, сорт АВ. Ширина 400 мм. Подшиваются вагонкой камерной сушки, сорт АВ.
Терраса/балкон (при наличии) Устанавливаются опорные столбы из строганного бруса камерной сушки 140х140 мм. с компенсационными болтами под усадку. Устанавливаются опорные столбы из строганного бруса естественной влажности 140х140 мм. с компенсационными болтами под усадку.
Отделка потолка террасы/балкона Евровагонка камерной сушки толщиной 12,5 мм. сорт АВ. Отсутствует.
Пол террасы/балкона Шпунтованная доска камерной сушки толщиной 36 мм. сорт АВ. Отсутствует.
Ограждение террасы/балкона Перила- строганая доска. Балясины- точеные, фигурные. Либо ограждение в скандинавском стиле. Устанавливаются ступени у входа. Отсутствует.
Отделка парной Отделка осиновой вагонкой камерной сушки, сорт АВ по фольге, через контррейку 20х40 мм. (вентиляционный зазор). Установка пологов из осины. Отсутствует.
Допуск на геометрические параметры сруба Составляет +/- 50 мм по длине с каждой стороны. Составляет +/- 50 мм по длине с каждой стороны.
Допускается стыковка бруса, вагонки и половой доски По всему периметру стен бани (если ширина и длина бани более 6,0 метров). Вагонки и доски пола в каждой отдельной комнате. По всему периметру стен бани (если ширина и длина бани более 6,0 метров).
Допуски по брусу, доске +/- 5 мм. +/- 5 мм.
В стоимость включена Доставка комплекта материала в радиусе 500 км. от г. Пестова Новгородской области и сборка дома на вашем участке. Доставка комплекта материала в радиусе 500 км. от г. Пестова Новгородской области и сборка дома на вашем участке.
Гарантия 5 лет. 2 года.
Печь По запросу Не предусмотрена.
Бытовка строительная 2,0х3,0 м. каркасно-щитовая. Стоимость 23000 руб. Остаётся на участке Заказчика. Стоимость 23000 руб. Остаётся на участке Заказчика.
Туалет 1,0х1,0 м. каркасно-щитовой. Стоимость 12000 руб. Остаётся на участке Заказчика. Стоимость 12000 руб. Остаётся на участке Заказчика.
Генератор Стоимость аренды на весь срок строительства 10000 руб. ГСМ за счёт Заказчика. Стоимость аренды на весь срок строительства 10000 руб. ГСМ за счёт Заказчика.

Постройка деревянных бань может осуществляться в 2-х вариантах: полностью под ключ и под усадку, когда сруб будет отстаиваться на протяжении определенного времени.

Зимой профессионалы рекомендуют строить баню из зимнего леса, летом - из дерева камерной сушки.

Подходящими для дачи или сада являются экономные бани на винтовых сваях, у нас можно найти одноэтажные и полуторатажные варианты.

Имеется два размера профбруса: 140х140 мм и 190х140 мм. Постройки из вертикального бруса возводятся с использованием бруса 140х190 мм.

Дополнительные услуги


Баня из профилированного бруса проекта 11, двухэтажная, общей площадью конструкции 91 кв.м. c габаритами 6х9 м..
Неповторимый микроклимат в помещении формируется благодаря применению соснового бруса. Постройка балконом и террасой отличается прекрасной теплоизоляцией, не развивается грибок, материал не гниет.
За 2 недели мы построим баню по индивидуальному или готовому проекту любой сложности в Севастополе по выгодной стоимости из безопасных, экологически чистых материалов.

Заказать или задать вопрос



Заказать или задать вопрос

Заказать звонок